Vela Bay首航
Why Vela Bay
Vela Bay — a name that translates as maiden voyage — is the first private residential launch in the emerging Bayshore precinct on Singapore’s East Coast in 26 years. Developed by Bayshore Walk Pte Ltd (a joint venture between SingHaiyi Group and Haiyi Holdings), the 515-unit, two-tower scheme sits directly above Bayshore MRT (TE29) on the Thomson-East Coast Line — making it one of the very few launches in Singapore where residents will step from lift lobby to rail platform in under two minutes.
What sets Vela Bay apart isn’t any single feature — it’s the convergence of four rarely-combined advantages: an MRT station at the doorstep, unblocked sea views across East Coast Park (≈ 72% of stacks face the sea), Temasek Primary School within 1 km, and early-mover pricing in a precinct that URA and HDB have earmarked for complete transformation into Singapore’s next transit-priority, car-lite lifestyle district.
The development is Green Mark Platinum Super Low Energy certified, achieves over 80% sustainable architectural and landscape materials, and is scheduled for TOP on 31 December 2031.
MRT at the doorstep
Bayshore MRT (TE29) sits directly above the development. One stop to Bedok South; a 20-minute ride to Marina Bay, Orchard or Changi Airport on the Thomson-East Coast Line.
Sea views by design
13 of 18 stacks orient toward the sea; ~52% of units get confirmed unblocked sea views from Level 11 upwards. A new landscaped bridge will connect residents straight to East Coast Park.
Early-mover in Bayshore
The first new private launch in the precinct in 26 years. Tight comparable supply means limited benchmarks to anchor against — historically a setup that rewards patient buyers.
Project At-a-Glance
| Developer | Bayshore Walk Pte Ltd JV — SingHaiyi Group and Haiyi Holdings |
| Address | Bayshore Road / Bayshore Drive |
| District | 16 · East Coast / Bayshore |
| Tenure | 99-year leasehold from 25 Jun 2025 |
| Site Area | 10,497 sqm (≈ 113,000 sqft) |
| Total GFA | 47,442 sqm · Plot Ratio 4.52 |
| Blocks and Storeys | 2 blocks · 31 storeys each |
| Total Units | 515 · 9 units per core |
| Carpark | 258 lots (50% car-lite) · 4 EV · 3 accessible · 129 bicycle |
| Expected TOP | 31 December 2031 |
| Launch date | 11 April 2026 |
| Architect | P & T Consultants Pte Ltd |
| Landscape Architect | Ecoplan Asia Pte Ltd |
| Civil and Structural Engineer | KCL Consultants Pte Ltd |
| Mechanical and Electrical Engineer | Rankine & Hill (S) Pte Ltd |
| Quantity Surveyor | ThreeSixty Cost Management Pte Ltd |
| Project ID | Sujono Hun |
| Sustainability | Green Mark Platinum · Super Low Energy |
Unit Mix and Sizes
| Type | Size (sqft) | Units | % of Total |
|---|---|---|---|
| 1-Bedroom | 484 | 27 | 5.2% |
| 2-Bedroom | 592 | 84 | 16.3% |
| 2-Bedroom Premium | 688 | 113 | 21.9% |
| 3-Bedroom | 893 | 87 | 16.9% |
| 3-Bedroom Premium | 1,033 | 88 | 17.1% |
| 4-Bedroom | 1,173 | 62 | 12.0% |
| 4-Bedroom Private Lift | 1,378 | 26 | 5.0% |
| 5-Bedroom Private Lift | 1,582 | 26 | 5.0% |
| Penthouse | 1,765 | 2 | 0.4% |
| Total | 484 – 1,765 | 515 | 100% |
Indicative Pricing
Why Buyers Are Watching
- 1First-mover in Bayshore — the only new private launch in this emerging precinct in 26 years. Tight competing supply means limited benchmarks to anchor against.
- 2MRT at the doorstep — Bayshore MRT (TE29) is directly above the development on the Thomson-East Coast Line, linking to Marina Bay, Orchard, CBD and Changi Airport.
- 3East Coast Park across the road — a new landscaped bridge across the ECP connects the site to the beach and the island-wide Park Connector Network.
- 4Temasek Primary within 1 km — plus Temasek Secondary, Bedok View Secondary, Victoria JC, Temasek JC and SUTD all within a short commute.
- 5~72% sea-facing — 13 of 18 stacks orient toward the sea; roughly 52% of units have confirmed sea views from Level 11 and above.
- 6Bayshore Masterplan upside — car-lite precinct, 1 km community spine, transit-priority corridor and a gateway bridge to East Coast Park planned by URA and HDB.
- 7Strong precedent returns — neighbouring projects have delivered healthy appreciation: ECO (+35%), Grandeur Park Residences (+48%) and long-held Bedok Court (+185%) since their respective launches.
- 8Green Mark Platinum — Super Low Energy certification, 80%+ sustainable materials, pneumatic waste collection system — lower operating cost plus resilience to future sustainability levies.
Location and Connectivity

Schools Nearby
| Pre-school | Mulberry Learning @ East Coast · Wharton Preschool |
|---|---|
| Primary (within 1 km) | Temasek Primary School ⭐ |
| Primary (within 2 km) | Bedok Green Primary · Fengshan Primary · Opera Estate Primary |
| Secondary | Temasek Secondary · Bedok View Secondary · Bedok South Secondary · Victoria School |
| Tertiary | Temasek Junior College · Victoria Junior College · Temasek Polytechnic · Singapore University of Technology and Design (SUTD) |
Lifestyle and Amenities
Beach and Outdoors
East Coast Park, Park Connector Network, Marina Bay, Gardens by the Bay and the National Stadium / Sports Hub all within easy reach.
Dining on your street
Katba Cafe, Crust Cafe, Tipsy Turtles Bistro and Rammy’s Kitchen within walking distance — plus hawker classics at Bedok Interchange and East Coast Lagoon Food Village.
Seafront Icons
Jumbo Seafood, Long Beach UDMC, Lux Cove and Hua Yu Wee — Singapore’s iconic East Coast seafront dining — all a short drive or bike ride away.
Retail
Parkway Parade, Bedok Mall, i12 Katong, Tanjong Katong Complex and Jewel @ Changi — a complete retail belt flanking the development.
Community
Planned SAFRA clubhouse (Singapore’s largest) at Bedok South MRT, plus the upcoming Bayshore Street Community Spine — a 1 km green corridor with shops, cafes and event space.
Wellness
On-site wellness deck, steam room, gymnasium, recreational tennis court and yoga/calisthenics corner — plus East Coast’s running and cycling circuits across the bridge.
Site Plan
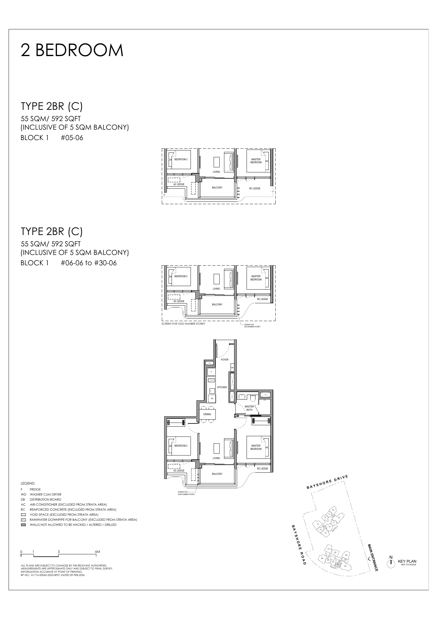
Floor Plans (Selected)
A representative plan from each bedroom type. Download the full PDF below for every stack-by-stack layout, including 2BR Premium, 3BR Premium, 4BR B / PL, 5BR PL and the two Penthouses.
Elevation and Stack Chart
Facilities (30+)
Gallery










Developer and Consultant Team
Bayshore Walk Pte Ltd — a SingHaiyi and Haiyi Holdings joint venture
Bayshore Walk Pte Ltd (UEN 202517243M · Housing Developer’s Licence C1542) is the special-purpose vehicle behind Vela Bay. It is a joint venture between SingHaiyi Group Ltd — a Singapore-listed developer with a portfolio across residential, commercial and hospitality — and Haiyi Holdings, one of Singapore’s most active luxury residential developers. The JV submitted the winning tender of S$658.89 million (~S$1,388 psf ppr) for the Bayshore Road Government Land Sales (GLS) site.
| Architect | P & T Consultants Pte Ltd |
| Civil and Structural Engineer | KCL Consultants Pte Ltd |
| Mechanical and Electrical Engineer | Rankine & Hill (S) Pte Ltd |
| Quantity Surveyor | ThreeSixty Cost Management Pte Ltd |
| Landscape Architect | Ecoplan Asia Pte Ltd |
| Project Interior Design | Sujono Hun |
Sustainability and Specifications
Vela Bay is designed to Singapore’s top environmental standard — Green Mark Platinum Super Low Energy — and has been assessed for Whole Life Carbon and Maintainability badges.
- Green Mark Platinum Super Low Energy — the highest residential certification in Singapore’s BCA Green Mark scheme
- Pneumatic Waste Collection System (PWCS) — hygienic, low-noise refuse removal without traditional bin chutes
- 80%+ sustainable materials for architectural and landscape works
- Whole Life Carbon + Maintainability badges — lower lifetime operational cost
- EV-ready — 4 EV charging lots, 258 lots total (50% car-lite), 129 bicycle lots and end-of-trip facilities
- Transit-priority orientation — direct sheltered access to Bayshore MRT (TE29)
Project Timeline
Project Factsheet
A shareable 2-page PDF snapshot of everything on this page — bring it to viewings, forward it to family.
Download the Full Sales Pack
Vela Bay Factsheet
2-page LovelyHomes project factsheet — share with family, bring to viewings.
Full Floor Plans
All stack-by-stack floor plans with balcony and AC-ledge dimensions.
Location Map
High-resolution location map — MRT, schools, amenities.
Frequently Asked Questions
Where is Vela Bay located?
Who is the developer?
When is Vela Bay expected to be completed?
What unit types are available?
What are indicative prices at Vela Bay?
How close is Bayshore MRT?
How many units have sea views?
Is Vela Bay freehold or leasehold?
Which primary schools are within 1 km?
What makes Vela Bay different from other new launches?
Ready to see Vela Bay in person?
Speak to our LovelyHomes concierge on WhatsApp for the latest unit availability, e-brochures and showflat bookings. We’ll connect you with the developer’s in-house team, not an agency.
Related Buying Guides
ABSD Singapore 2026: The Complete Guide
Rates, surcharges and remissions for citizens, PRs and foreigners buying a second (or first) home.
Buyer’s Stamp Duty (BSD) Singapore 2026
Current BSD rates, worked examples and a calculator for residential purchases.
Home Loan Singapore 2026: HDB vs Bank
LTV, SORA, fixed vs floating and how to structure your financing package.
First-Time Home Buyer Walkthrough
From option fee to collection of keys — every step in the Singapore buying process.
CCR vs RCR vs OCR Explained
Which region does Vela Bay sit in, and what that means for capital appreciation.
Cooling Measures Timeline 2009–2026
Every major round of Singapore property cooling measures and what they did to prices.




0 Comments