Promenade Peak is Allgreen Properties’ 596-unit, single-tower, 63-storey condominium on a 9,286-square-metre parcel at 1 Zion Promenade (Bukit Merah Planning Area, District 03). Bounded by the Singapore River to one side and the Redhill/Tiong Bahru heritage quarter on the other, the tower is the tallest of the Zion Road GLS cluster and will top out at Singapore’s 240-metre Strategic Height District control — matching the highest residential silhouettes in the CCR. Delivered by the Allgreen-Woh Hup-DCA Architects team using PPVC construction, with target vacant possession 6 February 2031. This page is the developer-confirmed fact set, our own CCR-market commentary, and the download of the full fact sheet.

Why Promenade Peak is a different shape of CCR launch
Most CCR new launches in the last three years have been medium-rise, multi-block, 200-to-400-unit boutique developments with average psf in the S$2,700–3,200 band. Promenade Peak breaks the mould in three ways. First, scale — 596 units in a single 63-storey block is a higher unit count and taller silhouette than any recent CCR launch, approaching the density of a large RCR condo inside District 03. Second, tenure clock — the 99-year lease was freshly started on 4 November 2024, giving buyers the full 99-year runway rather than the usual 97-year residual typical of launches 18 months after GLS award. Third, positioning — Zion Road is rapidly becoming Singapore’s next riverfront premium enclave, anchored by the GLS parcels at River Green, Zyon Grand and Promenade Peak itself, all within walking distance of Havelock and Great World MRT stations.
The tower’s vertical programme is also deliberately stacked to separate lifestyle tiers. Levels 1 to 21 house the Promenade Collection (AS, B, BS, C types), Levels 22 to 42 the same collection with higher ceilings, Levels 43 upwards the Promenade Suites (CP, DP, EP private-lift types), and the roof level hosts Sky Peak, Sky Observatory, Sky Vista and the twin infinity/champagne pools. Two half-level Sky Garden interludes (L22 and L43) double as private-lift transfer floors — a ramp-up to the upper suites that keeps travel times short.
Quick facts
| Project Name | Promenade Peak |
| Developer | Valerian Residential Pte. Ltd. — a subsidiary of Allgreen Properties Limited |
| Address | 1 Zion Promenade, Singapore 169564 |
| District | District 03 (Bukit Merah / Tiong Bahru planning area) — CCR |
| Tenure | 99 years commencing 4 November 2024 |
| Site Area | 9,285.9 sqm |
| Plot Ratio / Height | 5.6 / 240 SHD (Strategic Height District) |
| Proposed GFA | 56,161.12 sqm |
| Total Units | 596 units in 1 block of 63 storeys |
| Construction | PPVC (Prefabricated Prefinished Volumetric Construction) |
| Carpark | 481 lots across 3 basements (incl. 15 EV-ready, 4 accessible); 149 bicycle bays |
| Architect | DCA Architects Pte Ltd |
| Landscape | Ecoplan Asia Pte Ltd |
| Interior Design | Index Design Pte Ltd |
| Main Contractor | Woh Hup (Private) Limited |
| Expected Vacant Possession | 6 February 2031 (TOP targeted H1 2030) |
| Legal Completion | 6 February 2034 |
Unit mix — 15 layout variants across two collections
The unit mix is deliberately wide: efficient 527 sq ft 1-bedroom+Study entry units for singles and couples, through to 1,884 sq ft 5-bedroom Premium penthouses with full private-lift access. The Promenade Collection (AS, B, BS, C types) makes up the first 21 levels of the tower; the Promenade Suites (CP, DP, EP) occupy the upper floors with higher ceilings, private lifts and the lifestyle-bar layout upgrade. Maintenance fund estimates scale from $325 (AS1) to $520 (EP1) per month at approximately S$65 per share value.
| Bedroom Type | Code | Size (sqft) | Size (sqm) | Units | Share Value |
|---|---|---|---|---|---|
| 1 BR + Study | AS1 / AS2 | 527 | 49 | 80 | 5 |
| 2 BR | B1 / B2 | 657 | 61 | 80 | 6 |
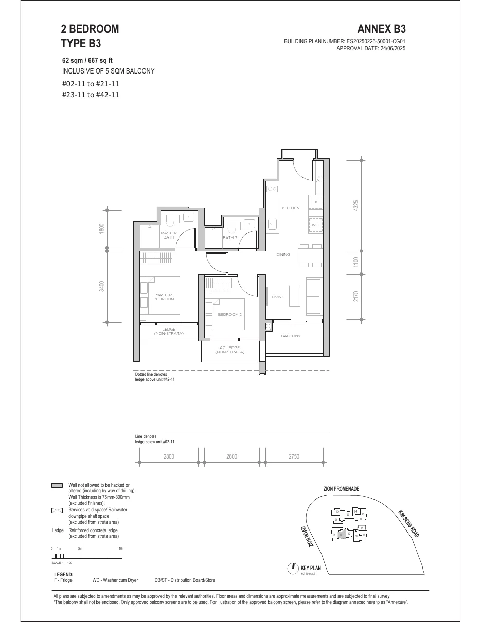
| 2 BR | B3 | 667 | 62 | 40 | 6 |
| 2 BR | B4 | 689 | 64 | 40 | 6 |
| 2 BR | B5 | 678 | 63 | 40 | 6 |
| 2 BR + Study | BS1 | 764 | 71 | 40 | 6 |
| 2 BR + Study | BS2 | 786 | 73 | 40 | 6 |
| 2 BR + Study | BS3 | 797 | 74 | 40 | 6 |
| 3 BR | C1 | 1,076 | 100 | 40 | 6 |
| 3 BR | C2 | 1,033 | 96 | 40 | 6 |
| 3 BR Premium (Private Lift) | CP1 | 1,195 | 111 | 19 | 7 |
| 3 BR Premium (Private Lift) | CP2 | 1,163 | 108 | 19 | 7 |
| 4 BR Premium (Private Lift) | DP1 / DP2 | 1,421 | 132 | 38 | 7 |
| 4 BR Premium (Private Lift) | DP3 | 1,582 | 147 | 19 | 7 |
| 5 BR Premium (Private Lift) | EP1 | 1,884 | 175 | 19 | 8 |
| Total | 594 + 2 PH | ||||
Pricing — CCR positioning in a 2026 market
Developer pricing has not been finalised for public release at the time of writing. For District 03 CCR benchmarking, nearby launches in 2024-2025 — The Continuum, Grand Dunman (adjacent RCR) and further afield Klimt Cairnhill — have cleared in the S$2,700–3,300 psf band, with premium CCR launches such as Boulevard 88, 19 Nassim and 32 Gilstead pushing into the S$3,800–4,500 psf range. Given Promenade Peak’s single-tower, 240-metre height, fresh 99-year lease and the full premium provisions (Miele, Laufen, Gessi, Ernestomeda), expect base pricing to land in the upper CCR mainstream band — indicatively in the S$2,950–3,250 psf range for lower-floor 1-bed+Study units and upwards for private-lift suites.
Indicative quantum at a mid-band S$3,000 psf: a 527 sq ft 1 BR + Study = S$1.58M; a 1,033 sq ft 3 BR (C2) = S$3.10M; a 1,884 sq ft 5 BR Premium with private lift (EP1) = S$5.65M. Upper-floor and sky-garden premiums typically add S$150–300 psf in CCR stacks of this scale.
10 highlights of Promenade Peak
- A single 63-storey tower at the 240 SHD height limit — the most commanding silhouette in the Zion Road GLS cluster, with unobstructed city-skyline and Singapore River views for upper-floor units.
- Brand-new 99-year tenure started 4 November 2024 — buyers get the full lease runway, not a partially-consumed lease.
- Allgreen Properties (Kuok group) as developer — a long-standing Singapore developer with a track record in CCR residential.
- PPVC construction — factory-prefabricated modular blocks assembled on site, delivering tighter tolerances and faster completion.
- Miele (Germany) full kitchen suite across all units, with Liebherr wine chillers in premium types. Sanitaryware by Laufen (Switzerland); fittings by Gessi (Italy).
- Ernestomeda (Italy) lifestyle-bar cabinetry in Promenade Suites — a rare provision in Singapore new launches.
- Three-level leisure stack — L1 landscape deck with 50 m lap pool, spa cove and hydrospa bay; L43 revitalising pools; roof-level Sky Peak Infinity Pool (3.5 m × 20 m) and Sky Champagne Pool.
- Smart-home provisions — smart door lock, smart doorbell with camera, smart lighting modules, smart smoke detector, smart mailbox and Google Home voice control integration.
- Mitsubishi air-conditioning throughout, with dedicated AC control via the smart-home gateway.
- Walking distance to Havelock MRT (Thomson–East Coast Line) and Great World MRT, with direct access to the CBD, Orchard, Napier and beyond the CBD south to Gardens by the Bay.

Connectivity — Thomson–East Coast Line and the river corridor
Promenade Peak’s site sits within walking distance of Havelock MRT (TE16) on the Thomson–East Coast Line and Great World MRT (TE15) a short walk further east. The TEL connects directly to Orchard, Caldecott, Stevens, Mount Pleasant (when the future northern alignment opens), and southward to Marina Bay, Gardens by the Bay and East Coast. Outram Park MRT interchange (NEL, EWL and TEL) is two stops east — opening the entire island rail network. Drivers reach the Ayer Rajah Expressway and Central Expressway in minutes; Marina Coastal Expressway provides the fastest CBD access for morning commute.
Pedestrians and cyclists benefit from the riverfront Park Connector Network — continuous from Kim Seng all the way east to Marina Bay, and north to Kampong Glam via the Singapore River corridor. Robertson Quay, Clarke Quay and Boat Quay are all accessible by a 20-to-30-minute walk or a ten-minute e-scooter ride.
Lifestyle — the Zion Road and Tiong Bahru enclave
Zion Road sits at the convergence of three of Singapore’s most beloved lifestyle districts: Great World (shopping, groceries, casual dining), Tiong Bahru (conservation shophouses, cafés, bookshops, heritage hawker) and River Valley (fine dining, long-stay serviced residences, international private schools). Great World City is a seven-minute walk away. Valley Point, Zion Riverside Food Centre (the night-owl’s hawker) and the upmarket Dempsey Hill and Holland Village clusters are all within a ten-minute drive.
For families, primary schools within 1–2 km include River Valley Primary, Zhangde Primary, Alexandra Primary, CHIJ (Kellock) and ISS International. Secondary options include Outram Secondary and CHIJ St. Theresa’s Convent. For runners and cyclists, Fort Canning, Pearl’s Hill City Park and the Rail Corridor are accessible along PCN routes.

Floor plans — showflat selection
The developer showflat features three layouts: a 2-Bedroom + Study BS1 (764 sqft / 71 sqm), a 3-Bedroom C2 (1,033 sqft / 96 sqm) and a 4-Bedroom Premium DP3 (1,582 sqft / 147 sqm). Common strengths include generous balconies (2.92–3.07 m ceilings), wet-dry kitchen separation from the C-type upwards, and full private-lift access from CP1 onwards. Ceiling heights escalate by tier: 2.78 m for Collection types, 2.96 m for C-types, 3.06 m for DP1/DP2/DP3/EP1 and 3.06 m with 2.96 m family rooms for penthouses.


Facilities — three amenity decks from L1 to Roof
Promenade Peak’s facilities are programmed into three distinct amenity decks, connected by a dedicated recreational lift circulation:
- Landscape Deck (L1 / E-Deck): 50 m lap pool (10 m wide, 5 lanes), 9 m × 6.5 m play pool, 6.5 m × 14.8 m family pool, 12.5 m × 13.5 m spa cove with 4 spa beds and hydrospa bay, ~100 sqm gymnasium, five separate clubhouses (Club Promenade 1/2/3, Club Canopy, Club Enclave), ~600 sqm Wellness Peak, dining pavilions and BBQ pavilions.
- Mid-Tower Sky Level (L22 & L43): Sky-garden transfer floors with revitalising pools (2 × 2 m spa seats, 0.9 m depth) and private-lift transfer lobbies.
- Roof (above L63): Sky Peak Infinity Pool (3.5 m × 20 m at 1.2 m depth), Sky Champagne Pool, Sky Lounge, Club Sky Peak and Sky Observatory (combined ~85 sqm).


Site plan and schematic

Developer — Allgreen Properties
Allgreen Properties Limited is part of the Kuok group — one of Asia’s most established family conglomerates — and was previously SGX-listed before privatisation in 2011. Its Singapore residential track record spans Royalgreen (Bukit Timah), Fourth Avenue Residences (Bukit Timah), Regent Grove (Woodgrove), Suites at Orchard, Viva and The Chevron (Park View). Allgreen’s delivery pattern has historically favoured thoughtful, design-led schemes with moderate density — Promenade Peak is an unusual single-tower, high-density outing that reflects both the 240 SHD zoning and the scale of Zion Road’s redevelopment arc.
Sustainability and build quality
Construction uses PPVC (Prefabricated Prefinished Volumetric Construction) — an advanced modular build method in which entire bathroom and room volumes are assembled in a controlled factory environment and shipped to site for stacking. PPVC delivers tighter finish tolerances than conventional wet trades and significantly reduces site noise and dust. The development uses a pneumatic waste disposal system (PWDS) — refuse is vacuum-transported through pipework to a central sealed collection bin, removing the traditional bin-centre odour and pest risk. The site is BCA Barrier Free Access compliant throughout, with 4 accessible carpark lots and fully accessible common areas.
Project timeline
- 4 November 2024 — 99-year lease commences. GLS parcel awarded to Valerian Residential (Allgreen).
- 2025 — Design finalised with DCA Architects; factsheet and FAQ released to agent network.
- Late Q3–Q4 2026 — Estimated foundation-stage payment milestone.
- 2027–2029 — PPVC factory production and on-site stacking.
- H1 2030 — Estimated Temporary Occupation Permit (TOP).
- 6 February 2031 — Latest Vacant Possession date.
- 6 February 2034 — Latest Date of Completion Notice.
Fact sheet — preview & download


⬇ Download the full Promenade Peak fact sheet & FAQ (PDF, 265 KB)
Frequently asked questions
1. Who is developing Promenade Peak?
The developer is Valerian Residential Pte. Ltd., a wholly-owned subsidiary of Allgreen Properties Limited. Allgreen is part of the Kuok group and one of Singapore’s most established residential developers, with projects including Royalgreen, Fourth Avenue Residences and Regent Grove.
2. Where exactly is the site?
The site is at 1 Zion Promenade, Singapore 169564, within the Bukit Merah Planning Area and District 03 CCR. Havelock MRT (TE16, Thomson–East Coast Line) is the nearest station; Great World MRT (TE15) is also within walking distance.
3. What is the tenure and lease start date?
Tenure is 99 years commencing 4 November 2024. Because the lease clock starts from the GLS award rather than completion, buyers getting keys in 2030/31 will still have a ~93-year residual lease — slightly better than the norm for GLS launches 18+ months post-award.
4. How many units are there?
596 units in a single 63-storey block, across 15 layout variants from 527 sqft 1-Bedroom + Study (AS1/AS2) to 1,884 sqft 5-Bedroom Premium (EP1) with private lift. The unit mix is balanced toward 2-Bedroom and 2-Bedroom + Study types — a common 2024-era new-launch mix targeting both investors and upgraders.
5. When will Promenade Peak be completed?
Expected TOP is H1 2030, with the Latest Vacant Possession Date 6 February 2031 and Legal Completion 6 February 2034. PPVC build methodology typically delivers to programme more reliably than conventional methods.
6. What appliances are provided?
Miele (Germany) full kitchen suite across all units — induction or gas hobs (varying by type), 60 or 90 cm hoods, combi-steam oven, combi-microwave oven (from DP3 upwards), integrated or freestanding fridge, washer-dryer or separate washer+dryer, dishwasher (from DP1 upwards), and Liebherr (Germany) wine chillers in CP through PH types.
7. What smart-home provisions are included?
Smart home gateway (1 no), smart doorbell with camera and chime, smart digital lockset on main door (and rear door for private-lift units), smart lighting control modules for Foyer, Living and Master Bedroom, smart smoke detector, air-conditioning control for all AC units, smart mailbox and smart voice control via Google Home.
8. Are there private lifts? Which units?
Yes — all CP1, CP2, DP1, DP2, DP3, EP1 and penthouse units have a dedicated private lift serving Basement 3 to Level 1 and Level 22, Level 43 to Roof (via the upper transfer floor). Access cards are required at private-lift lobbies and inside the lift car.
9. How does the carpark allocation work?
Carpark is on a first-come-first-served basis with no allocation per unit — 481 lots across three basements for 596 units. In a shortage, balloting is carried out. This is a lower ratio than the typical 1:1 and reflects the site’s walking-distance MRT access and the CCR’s lower driver-to-unit ratio.
10. Is Promenade Peak a good investment?
Three structural positives: the site is in a rapidly re-rating District 03 river corridor; the fresh 99-year lease leaves a full buying runway; and the combination of single-tower scale and 240 m height is rare. Risks: single-block developments have concentration risk (stack views matter more), and carpark balloting may deter driver-heavy buyer segments. For pure yield investors, the 1-BR + Study units at 527 sqft are likely to see the deepest rental pool from the TEL workforce.
11. How do I register for preview and balloting?
Register through the developer’s official preview registration. Initial allocation is typically by ballot among VVIP-registered buyers, followed by public preview. We will update this page with launch date, final price list and first-weekend take-up figures as soon as those are published.
Enquire about Promenade Peak
📱 WhatsApp us for price list, floor plans & VVIP preview access
Related reading
- THE ORIE (Toa Payoh) — 2026 new launch
- Aurea at Golden Mile — CCR new launch 2026
- One Marina Gardens — 2026 new launch
- Vela Bay (Bayshore Precinct) — 2026 new launch
- Freehold vs 99-Year Leasehold Singapore 2026
- TDSR & MSR: How Much Can You Actually Borrow in Singapore 2026
Disclaimer
All information on this page is sourced from developer-issued fact sheets, public GLS tender records and URA / HDB publications as at 19 April 2026. Floor areas are subject to final survey. Pricing, launch schedule and unit mix may change at the developer’s discretion. Buyers should verify all material facts directly with the developer before committing. LovelyHomes is not an appointed marketing agent and receives no commission from purchasers; this page is editorial coverage.


0 Comments